
NORTHEAST FIRENEWS |
|---|
QUICK LINKS TO SECTIONS OF THE PAGEAPPARATUS ORDERS - APPARATUS DELIVERIES - DEPARTMENT NEWS - OTHER NEWS |
|
|
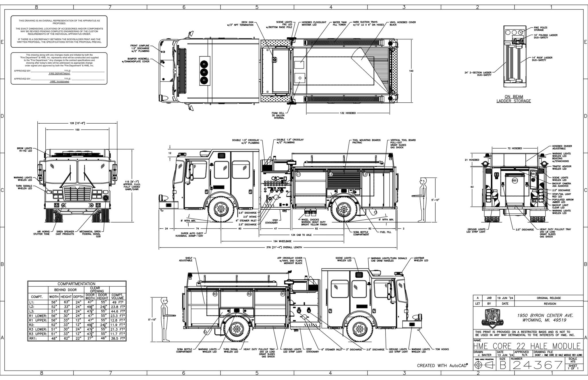
Alton Fire Department has placed an order with Desorcie Emergency Products for an E-One pumper tanker with 10 wheel chassis. Sep 2022. Amherst Fire Department has placed an order for a Pierce mid-mount tower. December 2025. Antrim Fire has placed an order for a Ford F-550/PL Custom ambulance. August 2023. Atkinson Fire Department has placed an order with Allegiance Fire/Rescue for a Pierce Enforcer 1500/1000 pumper. September 2023. Belmont Fire Department has placed an order with Lakes Region for a stock HME Ahrens-Fox 1871 pumper with 1500 GPM pump and 1000 gallon water tank. April 2026. Berlin Fire Department has placed an order with Allegiance Fire/Rescue for a Pierce pumpe and a Pierce ladder truck. The pumper will be a Pierce Enforcer 4x4 with a 750 gallon water tank and a 1500 GPM Waterous pump. The aerial will be an Enforcer 105' steel aerial with no tank and no pump. This truck will also carry a full cascade system for filling air bottles. Feb 2023. Berlin Fire Department has been awarded a Federal grant to purchase a new pumper. March 2023. Canterbury Fire Department has placed an order with Greenwood Emergency Vehicles for an E-One custom pumper. June 2023. Cheshire EMS has placed an order with Greenwood Emergency Vehicles for five (5) Wheeled Coach ambulances- two (2) Ford Transit type II ambulances, three (3) Ford E-350 Type III ambulances and 1 Horton ambulance built on a Ford F-550 chassis for a total of six ambulances. Apr 2022. Center Ossipee Fire Department has placed an order with Greenwood EV for a Ford F-550/Wheeled Coach ambulance. April 2026. Colebrook Fire Department has on order a Sutphen pumper to replace Engine 3. June 2024. Concord Fire Department has placed an order with Allegiance Fire/Rescue for a Pierce Enforcer 100' RM Tower. Aug 2022. Concord Fire Department has placed an order with Allegiance for a Pierce Enforcer 1500/1000 pumper. November 2024. Deerfield Fire Department has been awarded a Federal grant to purchase a new pumper-tanker. March 2023. Durham Fire Department has placed an order with Marion for a heavy rescue built on a Spartan chassis. December 2023. Enfield Fire Department has placed an order with Desorcie for a Freightliner M2-106/E-One 1250/2000 tanker. January 2024. Errol Fire Department has been awarded a Federal grant for a new tanker. July 2023. Goffstown Fire Department has placed an order with Allegiance for a Pierce Enforcer 1500/1000 pumper. April 2026. Greenland Fire Department has placed an order with Greenwood EV for an E-One custom pumper. March 2026. Haverhill Fire Department has placed an order with Desorcie for an E-One custom pumper. April 2025. Henniker Fire Department has placed an order with Allegiance for a Pierce Enforcer 1500/1000 pumper. July 2025. Hollis Fire Department has been approved funding to purchase a new Rosenbauer 105’ midmount tower. March 2025. Hopkinton Fire Department has on order a new tanker that will replace both Tanker 1 and Tanker 2. No manufacturer or spec info at this time. February 2024. Laconia Fire Department has placed an order with Lakes Region Fire Apparatus for a Spartan MetroStar/Alexis 1500/1000/30F pumper. Nov 2023. Lancaster voters approved funds to purchase two (2) new ambulances for the fire department. Mar 2022. 1 ambulance built by Demers delivered in August 2023. Lebanon Fire Department currently has on order an E-One Typhoon 100' RMA ladder truck. Lee Fire Department has on order a 2025 KME Panther Flex Pumper 1500/1000 with a Cummins X12 500 HP Motor and an Allison EVS 4000 Transmission for Engine 2. This is a stock unit and delivery is expected in early 2026. October 2025. Lincoln Fire Department has placed an order with Desorcie Emergency Products for an E-One Typhoon custom built pumper. March 2023. Londonderry Fire Department has placed an order with Allegiance Fire/Rescue for two (2) Pierce Velocity pumpers with 2000 GPM pumps and 1000 gallon water tanks. December 2023. Londonderry Fire Department has placed an order with Allegiance for a Pierce Velocity 100' RM Tower. July 2025. Manchester Fire Department has placed an order with Specialty Vehicles for a Rosenbauer Cobra 100' MM Tower for Truck 7. July 2024. Manchester Fire Department has placed an order with Specialty Vehicles for two Rosenbauer pumpers. August 2025. Marlborough Residents Approve New Fire Truck; $2.6M Operating Budget. CLICK FOR ARTICLE. March 2023. Mason Fire Department has on order a KME 1500/1000 pumper to replace Engine 4. March 2025. Meredith Fire Department has placed an order with Allegiance for a Pierce Enforcer pumper. March 2026. Milford Fire has ordered a Pierce Saber 1500/1000 pumper. April 2023. Nashua Fire Department has placed an order with Allegiance Fire/Rescue for a Pierce pumper for Engine 1. May 2023. Newington Fire Department has placed an order with Allegiance Fire/Rescue for a Road Rescue ambulance built on a Chevy 5500 chassis. March 2024. North Hampton Fire Department currently has on order a Ford F-550 forestry truck with 200 gallon water tank. July 2024. Pelham Fire Department has placed an order with 4-Guys for a 3000 gallon tanker built on a Kenworth T880 chassis. Delivery is expected sometime in 2028. March 2026. Plaistow Fire Department has placed an order with Allegiance Fire/Rescue for a Pierce Enforcer 2000/1000 pumper. June 2024. Plymouth Fire Department has placed an order with Allegiance for a Pierce Saber 2000/2500 tanker. June 2024. Portsmouth Fire Department has on order an E-One Cyclone Stainless Steel 1500/780 pumper for Engine 3. Portsmouth Fire Department has placed an order with Greenwood EV for an E-One 95' RM tower. January 2026. Rye Fire Department has placed an order with Greenwood EV for an E-One custom pumper. May 2025. Salem Fire Department has placed an order with Greenwood Emergency Vehicles for a Horton ambulance built on a Ford F-550 4X4 chassis. Nov 2023. Salem Fire Department has placed an order with Allegiance for a Pierce Enforcer 100' MM Tower. July 2025. Salem Fire Department has placed an order with Allegiance for an International/Road Rescue ambulance. February 2026. Somersworth Fire Department has placed an order with Allegiance for a Pierce Enforcer 2000 GPM, 100' RM Tower. January 2026. Surry Fire Department has placed an order with Allegiance for a Ford F-550/Skeeter brush truck. March 2026. Tilton-Northfield Fire Department has placed an order with Greenwood EV for a Ford F-550/Horton ambulance. April 2024. Weare Fire Department has on order a Rosenbauer pumper. 2025. Windham Fire Department has placed an order with Greenwood Emergency Vehicles for a Horton ambulance built on a Ford F-550 chassis. February 2024. |
|
|
Andover has acquired a 2019 Ford F-350/AEV 4X4 ambulance. Posted in February. Barrington Fire Department has taken delivery of a 2025 Ford F-550 ambulance (unknown manufacturer of body at this time) for Ambulance 1. Posted in February. Concord Fire Department has taken delivery of a 2025 Pierce Enforcer 100' RM Tower for Tower 1. The current 2013 Pierce tower will become a spare, replacing a 1992 E-One. Posted in January. Concord Fire Department has taken delivery of a 2025 Ford F-550/PL Custom ambulance for Ambulance 5. Posted in March. Danville Fire Department recently acquired a 2013 Ford E-450/PL Custom ambulance for Ambulance 2. It previously served with the Kingston NH Fire Department. Posted in March. Epping Fire Department has taken delivery of a 2025 Spartan/Fouts pumper for Engine 1. Posted in April. Errol Fire Department has taken delivery of a 2025 Freightliner/Metalfab for Engine-Tanker 2. Posted in March. Exeter Fire Department has taken delivery of a 2025 Ford E-450/Wheeled Coach ambulance for Ambulance 1. The current Ambulance 1 will become Ambulance 2, with the current Ambulance 2 being retired. Posted in April. Goffstown Fire Department has taken delivery of a 2025 Ford F-550/PL Custom ambulance for Ambulance 2. Posted in January. Hampton Falls Fire Department recently took delivery of a 2025 Ford F-550/Toyne 1250/300 for Engine 3. Posted in March. Hinsdale Fire Department has removed the Reading body from Utility 1's 2013 GMC 3500 HD and mounted a new 2025 Unruh Fire body. Posted in January. Kingston Fire Department recently took delivery of a 2025 Ford F-550/Braun Chief XL ambulance for Ambulance 2. Posted in February. Laconia Fire Department has taken delivery of a 2025 E-One Typhoon 1500/500/100' RMA for Ladder 5. Posted in January. Lisbon Fire Department has taken delivery of a 2026 Ford E-450/AEV ambulance for Ambulance 1. The current A1 is being retained by the department. Posted in January. Litchfield Fire Department has taken delivery of a 2024 Ford F-550/2026 E-One 1250/300/20A for Squad 1. Posted in March. Manchester Airport has taken delivery of a 2025 Oshkosh Striker 2000/3100/440F ARFF unit for EZ4. Posted in February. Meredith Fire Department has taken delivery of a 2025 Pierce Enforcer 1500/1250 for Engine 3. It replaces a 1993 Pierce. Posted in January. Nashua Fire Department has taken delivery of a 2026 Pierce Enforcer 1500/750 for Engine 2. Posted in March. New Boston Fire Department has occupied their new headquarters station located at 63 Mont Vernon Road. Posted in January. New Hampton Fire Department recently took delivery of a 2025 Spartan FC-94/E-One 1250/1000 for Engine 1 and a 2026 Ford F-550/E-One 1250/300 for Engine 3. Posted in April. North Conway has taken delivery of a 2025 Ford F-550/Demers ambulance for Ambulance 1. Posted in January. Peterborough Fire Department has taken delivery of a 2025 Ford F-550/Life Line 4x4 ambulance for Ambulance 1. Posted in April. Portsmouth Fire Department has taken delivery of a 2025 E-One Cyclone Stainless Steel 1500/750 for Engine 3. Posted in February. Twin Mountain Fire Department has taken delivery of a 2026 Ford E-450/AEV ambulance for Ambulance 1. Posted in March. |
|
|
Effingham Engine 1's 2015 HME Siverfox has returned to service after being refurbished and has been reassigned as Engine 4. Posted in February. Lebanon Fire Department has occupied their new headquarters station located at 12 South Park Street. Posted in April. |
|
|
Local fire chiefs say they’re struggling to meet demand with low staff, tight budgets. CLICK FOR ARTICLE. Posted in March. JRMA may pull out of Rindge. Town says coverage won't lapse. Posted in January.CLICK FOR ARTICLE County-run EMS prepared to bridge gaps if others close. CLICK FOR ARTICLE. Posted in January. Winchester considers axing its ambulance service. CLICK FOR ARTICLE. Posted in January. |